Unterlandstättner Architekten
  • Aktuell
  • Büro
    • Profil
    • Team
    • Auszeichnungen
    • Veröffentlichungen
    • Newsletter
    • Kontakt
  • Projekte
    • Alle
    • Wohnungsbau
    • Einfamilienhäuser
    • Öffentlich + Gewerbe
    • Dachausbau + Innenausbau
    • Wettbewerbe + Projekte
Unterlandstättner Architekten Instagramm
Menu Mobile
Ansicht
Ansicht
Schnitt
Schnitt
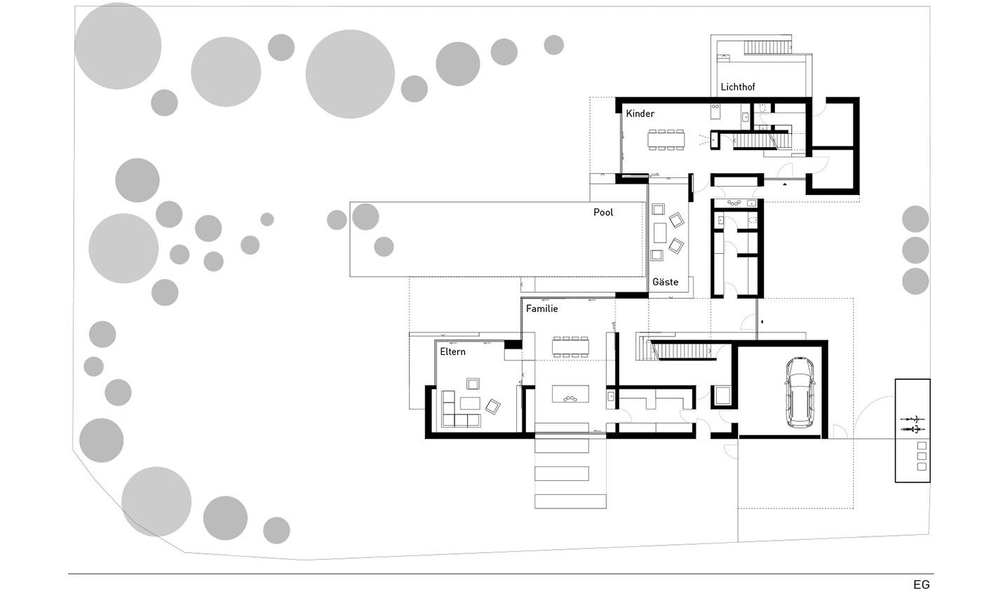
Grundriss

Familiensitz in Süddeutschland

Für einen großzügigen Neubau mit Eltern- und Kinderhaus sowie separatem Gästebereich entwickelten Unterlandstättner Architekten eine prägnante und differenzierte Baustruktur: Der Entwurf ist geprägt durch die klare Differenzierung von Erschließung, großzügigen privaten, gemeinschaftlich genutzten Bereichen und individuellen Rückzugsmöglichkeiten für die Familie. Die räumliche Konstellation wird durch Tageslichtführung und Sichtachsen unterstützt. Durch die bauliche Gestaltung erfolgt die Fokussierung der Aufenthaltsbereiche stets auf den zentral angeordneten eigenen Freibereich mit Wasserfläche und schützt vor Einblicken von außen.

  • Impressum
  • Datenschutz